Neubauprojekt: Seniorenwohnen in Rudow
Auf den Grundstücken entstehen 220 Wohnungen, darunter 158 Wohnungen für Senior:innen und 62 Wohnungen für Landesbeschäftigte. Hierfür wird die auf dem Grundstück befindliche Bestandsbebauung ergänzt. Der Neubau sieht die Errichtung drei neuer Wohnhäuser sowie Gewerbeeinheiten vor, um das Angebot an bezahlbarem Wohnraum in Berlin zu erweitern und die Versorgungsstruktur für das Gebiet sinnvoll zu ergänzen. Zusätzlich wird eine Kindertagestätte mit rund 50 Plätzen errichtet, um auf den Bedarf der Familien vor Ort einzugehen. In den zentralen Erdgeschossbereichen sind Flächen für ergänzende Nutzungen, wie ambulante Pflege- oder Betreuungsangebote sowie einen Gemeinschaftsraum für die Senior:innen vorgesehen.
Die Wohnungen bieten eine hochwertige Ausstattung für maximalen Komfort.
Zu den Highlights gehören:
- Einbauküche
- Fußbodenheizung
- moderne Bäder mit ebenerdigen Duschen
- Balkon / Terrasse
- Aufzug
- Fahrradstellplatz
- bodentiefe Fenster
- extensive Dachbegrünung
- attraktive Außenanlagen mit Spiel- und Erholungsflächen
- vereinzelte rollstuhlfreundliche Wohnungen sind vorhanden
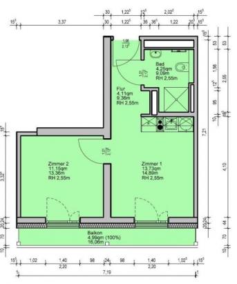
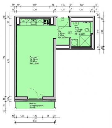
Weitere Ausstattungsmerkmale dieser Wohnung sind: Einbauküche, innenliegendes Bad, Dusche, Fußbodenheizung, Balkon, Aufzug vorhanden
Das Grundstück befindet sich im Süden des Bezirks Neukölln (Ortsteil Gropiusstadt), an der Landesgrenze zu Brandenburg und in der Nähe zum BER. Mit der fußläufig erreichbaren U-Bahnstation Lipschitzallee ist die Anbindung an den öffentlichen Personennahverkehr sehr gut. Über die benachbarte Gropiusstadt ist eine gewachsene Wohn- und Versorgungsstruktur gegeben.
Das Einkaufszentrum Gropius Passagen, zahlreiche Restaurants und das Kombibad Gropiusstadt (Hallenbad) befinden sich in der Nähe, ebenso wie der Landschaftspark Rudow-Altglienicke für erholsame Spaziergänge. Eine ideale Mischung aus urbanem Leben und grünen Oasen.
zusätzlich Servicepauschale für den Nachbarschaftstreff pro Monat: 20,00 EUR
Um eine lebendige und aktive Gemeinschaft in der Apartmentanlage zu fördern, bietet die Berlinovo in Zusammenarbeit mit der SOPHIA Berlin GmbH einen Nachbarschaftstreff als besonderes Angebot in der Wohnanlage an.
Der Treffpunkt bietet Raum für Begegnungen, Austausch und Unterstützung für alle Mieter:innen. Es wird ein abwechslungsreiches Programm angeboten, welches gemeinsam mit und von den Mieter:innen gestaltet wird.
Eine Einladung, aktiv am Gemeinschaftsleben teilzunehmen!
* * * Ihre Anfrage stellen Sie bitte über die Kontaktanfrage senden (rechts oben oder in der App in der folgenden Kontaktanfrage)! *










