Rund 250 m² exklusive Büro-/Gewerbefläche in Berlin-Friedrichshain
Im Comeniushof hat sich ein attraktiver Mietermix aus Agenturen, Bildungsträger, Ärzte, IT-Branche, E-Commerce, Sportstudios, Verbände, Verlagen, Deutsche Post und Coworker niedergelassen, der das kreative Ambiente und die zentrale und dennoch ruhige Lage zu schätzen weiß..
„Alte Fabrik“ im Comeniushof
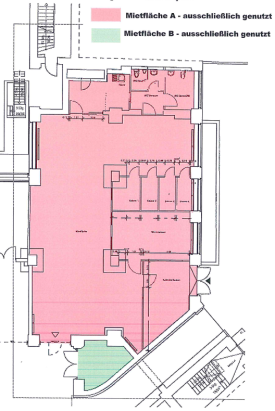
• Fläche von 248,75 m² im Erdgeschoss, barrierefrei
• Moderne Haustechnik, zentrale Versorgungsschächte
• Teppichboden
• Kappendecken
• 2 WC-Anlagen und Teeküche
• Separat anmietbare Stellplätze in der Tiefgarage
• Verfügbar nach Absprache
Der Bezirk Friedrichshain ist ein sehr nachgefragter Bürostandort mit begrenzten Flächenpotentia-len. Das Gewerbeareal lässt sich durch den neu gestalteten Verkehrsknotenpunkt S-Bahnhof War-schauer Straße und den nahegelegenen U-Bahnhaltestellen U5 Weberwiese/Frankfurter Tor und U1 sowie U3 an der Oberbaumbrücke, und mehreren Tram- und Buslinien innerhalb weniger Mi-nuten fußläufig gut erreichen. Des Weiteren werden Ihre Mitarbeiter das breit gefächerte kulinarische Angebot zu schätzen wissen.
Die Vermietung erfolgt provisionsfrei direkt über den Eigentümer.
Bei Fragen können Sie gern den Vermieter Herrn Nemetz kontaktieren.









